こんにちは。
四条営業所インテリアコーディネーター、中里です。
11月に入り急に朝夕の冷え込んできましたね。
夏から急に冬に向かって衣替えをしたりと忙しく、なかなか体調を整えるのが大変な今日この頃です。
みなさんも体調にはお気をつけてお過ごしくださいね。
今回は担当させて頂きました2軒のモデルハウス
「敷島ステラ西京区・樫原分譲地」1号地・2号地のご紹介です。
こちらの物件は、弊社設計部担当者と滋賀県立大学の学生さんがコラボでプランになっています。
(残念ながらインテリアコーディネーターは参加していませんが、どんなプランになっていくのか密かに楽しみにしていました。)
設計さんにお伺いしたところ、パッシブデザインをテーマに取り組まれたとの事です。
パッシブデザインとは?奥が深すぎるので簡単に説明すると・・・
『太陽の光や熱、自然の風などの自然エネルギーを活用して、省エネルギーを達成するとともに、快適な空間を実現するデザイン手法』
これまで弊社で、近江西・山城南・河内の3エリアでコンセプトモデルを建築されていますが、第4弾となる今回の樫原は山城北エリアに該当します。
一年を通して風が少なく、夏は蒸し暑く、冬は底冷えするという気候特性がある。という条件がある中でプランされています。
さて、インテリアコーディネーター目線からのご紹介
外観は京都市の景観規制のある地域なので木調の壁材と格子付き、和風なイメージです。
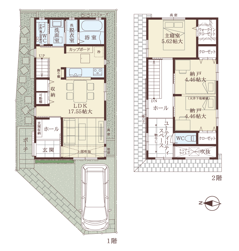
<1号地>
【間取り】
モデルハウス詳細
https://www.shikishima-town.com/sksmtwn/modelhouse/katagihara_model01/
<2号地>
【間取り】
モデルハウス詳細
https://www.shikishima-town.com/sksmtwn/modelhouse/katagihara_model02/
内装は、1号地は落ち着いたかっこいい感じ。2号地はナチュラルで明るい感じ。
との依頼でイメージ異なるモデルなるようにしました。
<1号地>
玄関とリビング、2Fホール物干スペース(写真右下)の床は濃いグレーのタイル張り。リビング吹抜には天窓があります。
(パッシブデザインの観点からは、濃い色のタイルで熱を溜めたり、天窓から光を多く入れたり風通しを良くするというプランだそうです。)
インテリアでは、格子の扉やソファー背面のグレーのタイルで重厚感を演出しました。
インテリアトレンドとしては、丸いフォルムブームがきていますのでリビングテーブルやペンダント灯で取り入れています。
コロンとしたフォルムがカッコカワイイです。
また背もたれの低いソファーも人気です。
<2号地>
2Fリビングのお家です。
1Fホールには手洗器、奥の方には収納付ベンチがあります。最近両方ともお客様からのご依頼が多くあります。
特にベンチの下は引出収納もなっていて、一石二鳥♪
ベンチの前にはちょっとしたウッドデッキもありほっこりしたスペースになっています。
鉄骨階段を上がっていくとLDKです。
インテリアでは、こちらも丸いフォルムのものを選んでみました。ダイニングテーブルも円形型。
その上のペンダントもあわせて円形型などなど。ナチュラルな空間になっています。
今回はパッシブデザインという視点から建てられたモデルハウスということで、個人的にも勉強になりました。
インテリアコーディネーターとして、みなさんのいろいろな住まい方、ご希望に添えるご提案をしていきたいと思います!
今回ご紹介した敷島ステラ 西京区・樫原の分譲地詳細はこちらから!
素敵なモデルルームなども多数公開しております。ぜひお気軽に敷島住宅へ遊びに来てください!
詳しくは敷島住宅分譲地情報を掲載中の「SHIKISHIMA TOWN」をご覧ください。












